
项目信息
项目总占地面积约二十三公顷,规划计容建筑面积约一百零九万平方米,由五个街坊、二十八个地块组成,是上海中心城区、黄浦江畔前所未有的大规模、整体开发综合性地块。F06地块定位为年轻潮流板块的公寓楼地块徐汇滨江项目定位为“西岸金融城”,位于徐汇区东部黄浦江畔,衔接徐家汇城市副中心,紧邻内环线。该片区是黄浦江两岸地区“十三五”规划列明的重点开发区域,也是上海目前文化传媒与数字科技发展的标杆地区之一。
本项目为F06地块,定位为年轻潮流板块中的公寓楼地块。

F06公寓聚焦香港置地中环汇的年轻一代。平均25至35岁的全球高净值人群,为新兴一代,旅居徒客,都市精英打造当代万象多维体验的滨江引力场。



F06公寓针对目标客户人群的物质需求和精神需求,从硬装的品质感与软装的艺术感入手,以品质定义精英族群的社会定位,以艺术引力年轻时尚的全新潮流。品质感聚焦客户群体享受当下的生活方式、个性表达的消费观念、品质至上的精神内核,以色彩体系、工艺与氛围营造作为切入点。
中环汇24时的故事主题概念
研发‘中环汇色彩体系’给予客户直觉与感官的瞬时冲击;在工艺上选择以个性和独立性对东方生活方式进行继承和创生,秉承东方的内核,对理性与感性进行了精致融合,设计主题隽永。装饰选材,主题与概念的紧密结合。

F06公寓提取徐汇泊岸不同时段的自然景观体系,以品质欢愉的浅暖灰色为主调 , 以主题突出的“浮光 – 晨曦”“望舒 – 霞光”的多彩进行活力的色彩对撞。并注重色彩年轻化时尚的场景氛围营造,打造独属于徐汇滨江的“HALO”中环汇-万象生24时体验动线。

打造徐汇滨江高品质空间,打造功能复合型设计空间,充满高雅、精致的仪式感;艺术感的营造从地域性、独特性和叙事性入手。每个区域以东方之仪主题空间串联,具有独特的设计元素和氛围,体现不同的空间体验和情感,在地文化的凝聚力与归属感 引发用户的高度共情。
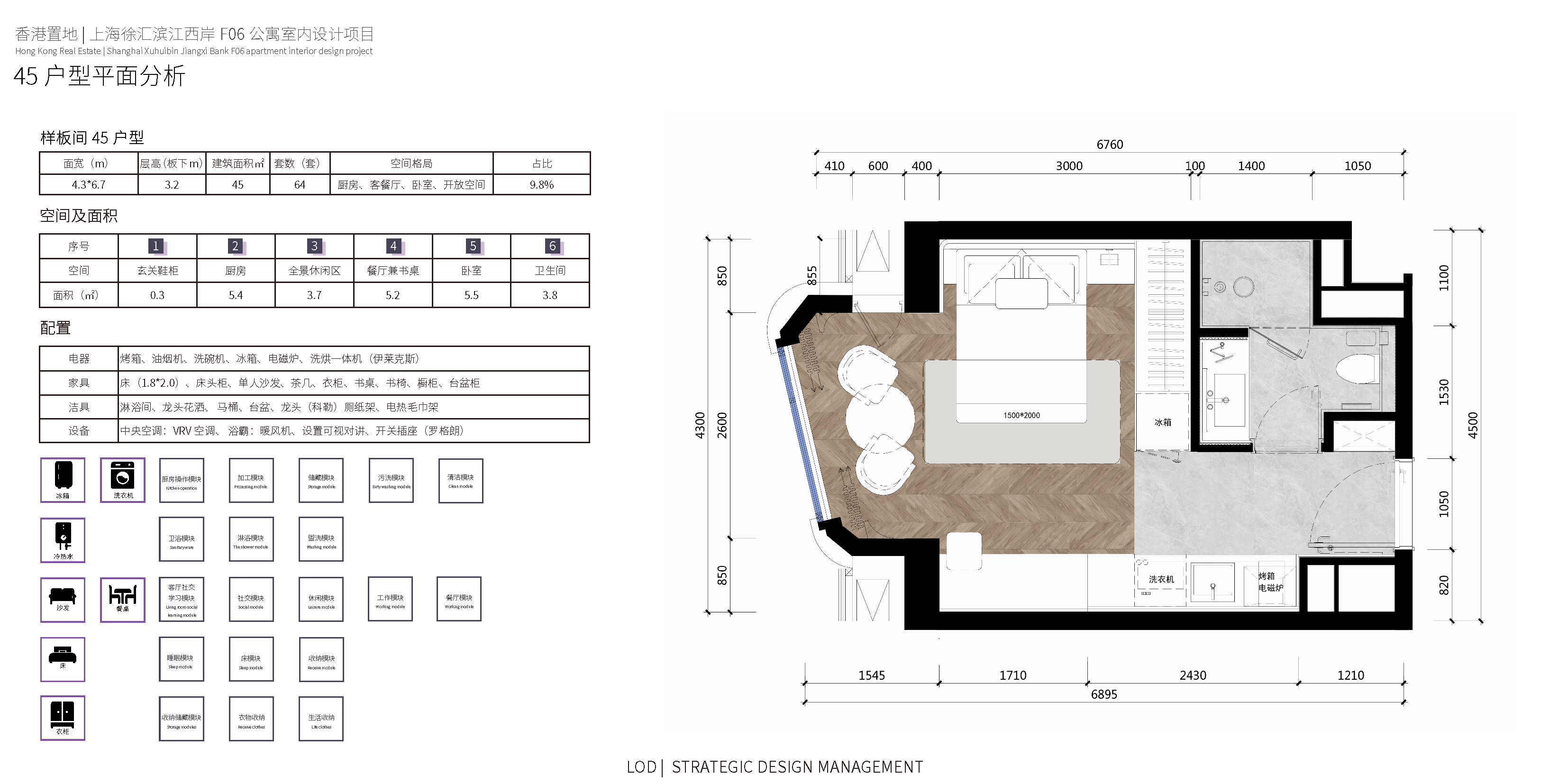
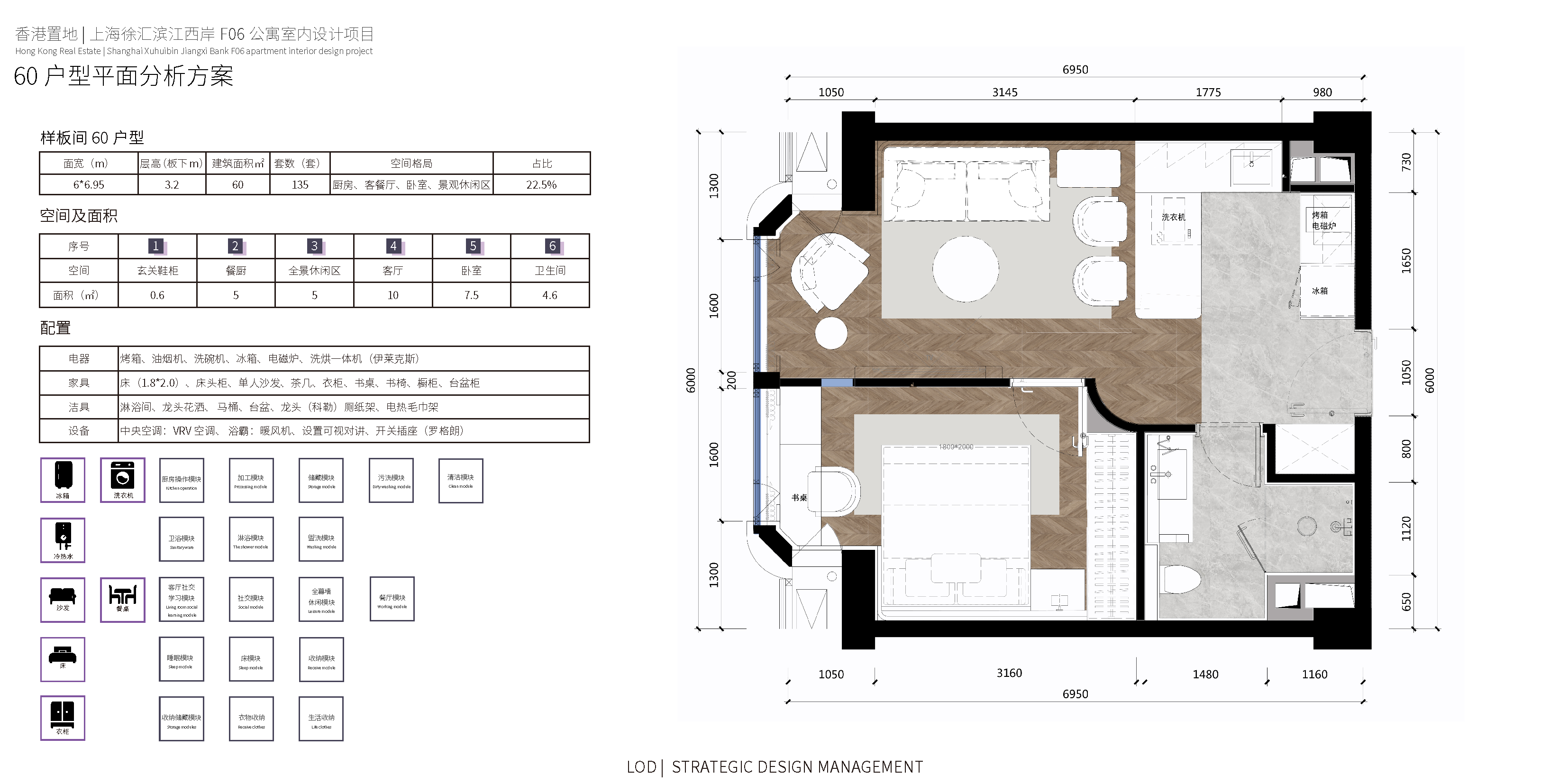
平面规划概念 、动线规划和空间功能
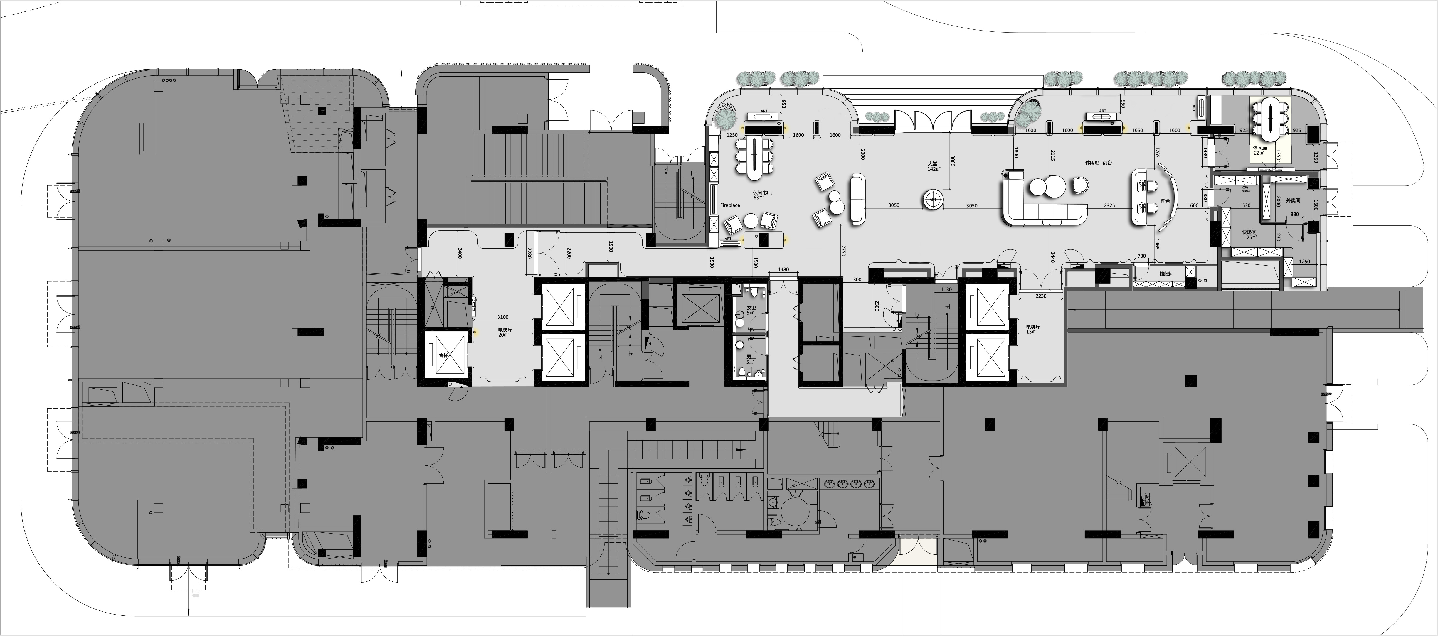
公寓公共空间规划:首层东塔摩登艺廊,西塔幻境书坊均布有前台接待区、会客厅、快递外卖区、三层西岸引力场设有网红楼梯间、多功能会客厅、影音室、健身房、共飨区、亲水茶岸、泊岸长廊、码头书坊。标准层的灰空间设为艺术盒子空间。整体动线规划原则为前后场动线最大程度分离,避免混流。






空间色彩大胆,打造箐英品质公寓式住宅,书写国际都市精致生活范本,自然与理想共生,曲线描摹品质生活景象。描绘滨江西岸泊岸码头的泊岸线条,讲述东方文化黄金年代的时空交错。





打造当代的摩登艺廊,幻境书坊;融合建筑、艺术、设计、城市研究、流行文化的生活艺术体验熔炉。



盒子空间将色彩主题融入设计当中,以串联不同的‘故事情节’,注重空间的叙事表达,以‘中环汇里的万象人生’为故事主线进行整体性的串联,以多样化空间、探索型设计、互动性元素打造人文、自然、艺术的光芒之旅。











