
万科中城翠湾·云栖 鸟瞰图
万科为大连敬献了一场以「领航生活的无限可能」为主题的产品盛会,LOD朗奥建筑的产品创新,将万科“好产品、好服务、好社区”三好理念全景式呈现。
项目信息
万科中城翠湾·云栖落座《大连2049城市愿景规划》规划中提出的城市战略核心承载区——泉水湾,近邻市重点EOD项目“天空之湖”。云栖所在,将是一片充满未来感的都会生态新中心。项目占地2.94万方,容积率2.4,住宅建面4.9万方,以“全能生活舱”承载居住、投资、创业三重价值,兑现大连公寓迭代新范式;

天空之湖规划示意图
项目毗邻约3.7公里生态河岸,约21万方生态绿廊,约8万方泉水河公园,配建全龄活动空间,形成潋滟河景、全龄公园、候鸟栖息三重生态融合的稀贵资源;地铁快轨、海底隧道、及地铁5号线与快轨3号线交织实现高效通勤;以自建河岸商业街为核心,构建1公里便利生活圈,约3公里内覆盖欧尚广场等商业体,约5公里直达华南商圈及梭鱼湾杉杉奥莱。

泉水河公园实拍图
核心客群
主力购房群体为25-45岁的年轻白领,自由职业者,中青年投资者,次要群体为45岁以上:多为本地改善型家庭或增添第三居所,以及长期持有型投资者,利用LOFT的区位增值潜力。
设计概念元素:”羊绒质地的”的空间表达:”微风粒子”
本设计从海洋自然意象中汲取灵感,构建三大空间叙事。以 “微风粒子” 为概念,借助乳浊玻璃的漫反射效果,隐喻大连海雾的朦胧意境,营造光线如羊绒般温润柔和的空间质感。



方案概念
以 “光之褶皱” 为形态线索,提炼海岸曲线与珊瑚礁肌理,塑造富有渐变层次的有机空间形态。

线条提炼

材质分析
以 “潮汐絮语” 为节奏内核,借鉴潮起潮落留下的滩涂纹路,赋予空间舒缓灵动的韵律变化,整体营造出兼具诗意与温度的沉浸式氛围。





首层大堂
项目一共两类户型,包括双钥匙和Loft样板间,户内的产品模块化设计分餐厨,衣柜,卫浴,厨房,储物,五大部分。为更好地满足多样化客群的空间需求,以约5.8米奢适面宽、约4.8米超悦挑高、约4米整窗颠覆小户型的空间居住体验,用现代轻奢的装修风格,减繁取精呈现都市人的精神栖息地,让“小户型”收获如“小别墅”的垂直空间体验。
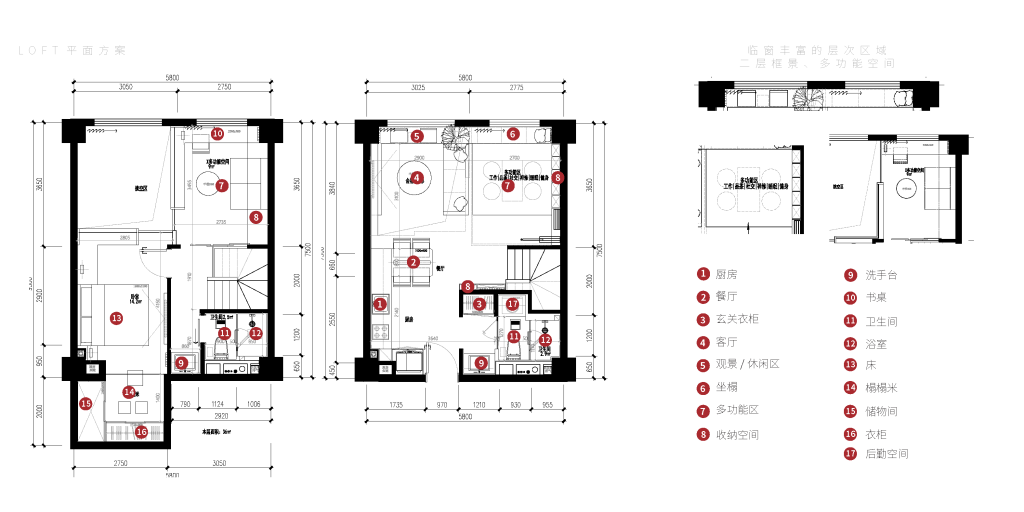
LOFT 户型设计
LOFT户型核心策略为空间感与场景一体化为核心,强调垂直维度的通透性与视觉延伸。通过局部挑空保留 loft 的复式体验,让动静分区既明确又连贯,服务于追求居住品质与空间个性的自住型用户。

LOFT户型平面

LOFT户型动线分析

LOFT户型轴测图

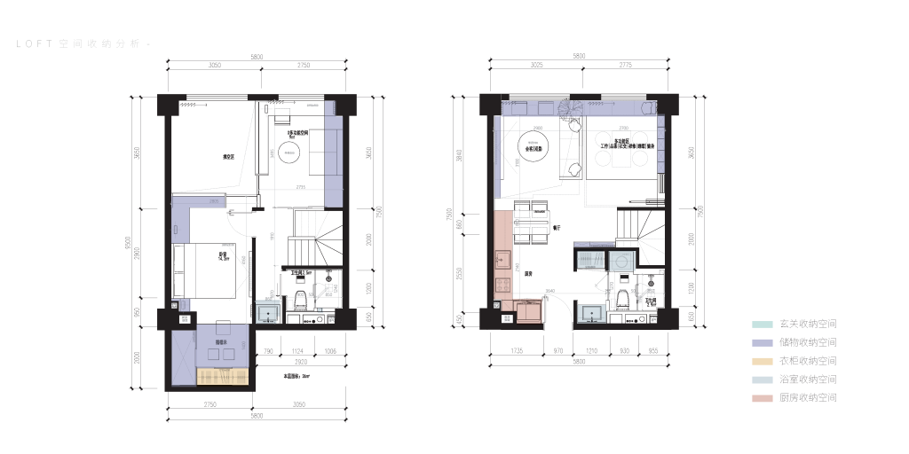
LOFT户型收纳模块分析
整合五大模块,将高频使用的收纳与操作区沿墙体整合,释放中央活动区域,实现小户型下的墅感居住体验。在不牺牲层高感受的前提下,将收纳容量最大化。强调“独享的仪式感”,满足居家办公、亲友小聚等多元场景的自在切换。

LOFT户型1F-玄关

LOFT户型1F-客厅

LOFT户型1F-办公区

LOFT户型1F-客厅

LOFT户型2F-X空间
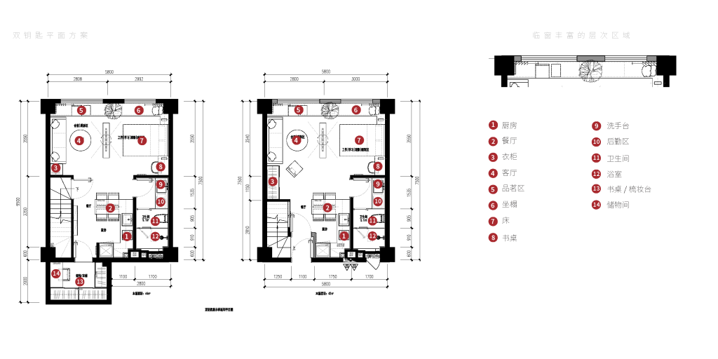
双钥匙户型设计
双钥匙户型核心策略为灵活性和适应性为核心功能载体上承载多功能和复合性的空间解决方案。 挖掘和提升边缘空间、剩余空间利用效率的关键区域。

双钥匙户型平面

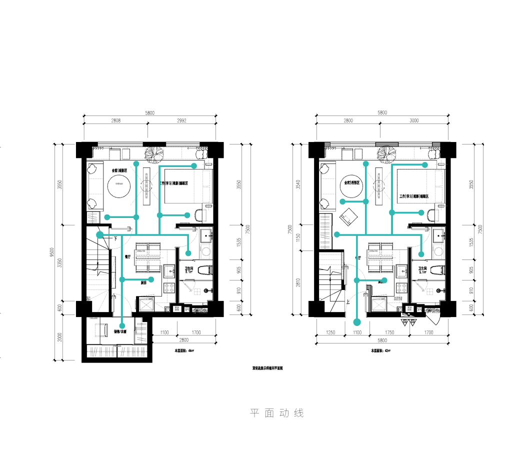
双钥匙户型动线分析

双钥匙户型轴测图

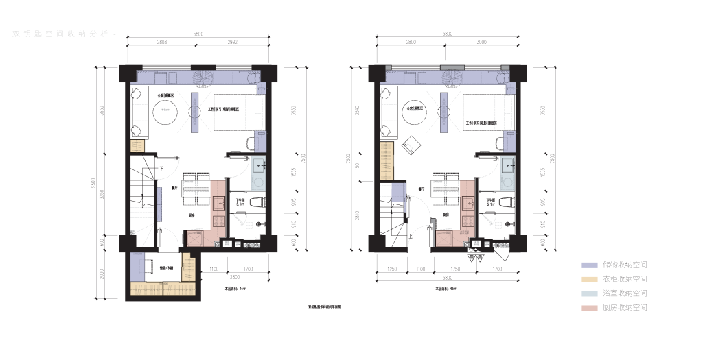
双钥匙户型收纳模块分析
适应现代动态、个性化生活方式的设计理念。 同时为空间未来的可变性预留可能性的前瞻性设计。户型在“全开放”与“半封闭”模式间灵活调整。

双钥匙户型01

双钥匙户型01-玄关

双钥匙户型01-客厅

双钥匙户型01-卧室

双钥匙户型02

双钥匙户型02-玄关

双钥匙户型02-客厅

双钥匙户型02-卧室

双钥匙户型02
▎ 铺展松弛自由生活底色
▎ 城市新一代青年理想栖居